Построили загородный дом в Ваганово по инд.проекту, 2 спальни по 14 кв.м., общая пл. дома 80 кв.м.
Дома площадью 80 кв.м. очень популярны в загородной застройке. Затраты на строительство вполне приемлемы, а при разумном использовании пространства в доме поместятся все необходимые зоны. Совсем недавно мы построили в Ваганово дом площадью 80 кв.м. по индивидуальному проекту наших заказчиков. Предлагаем вам посмотреть его и убедиться, что, несмотря на небольшие габариты, дом полностью пригоден для комфортного отдыха и проживания в нем небольшой семьи.

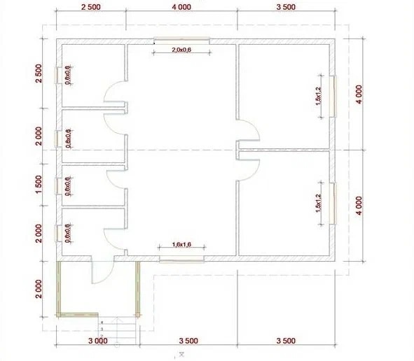
Габариты дома 8,0х10,0 метров, площадь крытой террасы — 6 кв.м. Давайте посмотрим внутреннюю планировку дома.
Планировка

Войдя в дом через террасу, мы попадаем в тамбур — комнату, выполняющую функции прихожей. Здесь можно оставить уличную одежду и обувь, организовать небольшую зону хранения. Далее мы попадаем в просторную кухню-гостиную общей площадью 32 кв.м. Светлое пространство комнаты позволяет вволю покреативить. Например, расположить здесь кухонную и обеденные зоны, где можно собираться всей семьей за большим столом, а также зону отдыха для родственников и гостей. В доме две спальни по 14 кв.м. каждая, раздельный санузел. Дом оборудован котельной, так как построен в зимней комплектации и оснащен всем необходимым для проживания в холодное время года. Помимо отопительного оборудования, в котельной комнате также можно сделать небольшую систему хранения вещей, которые не должны быть у всех на виду.
Что было сделано в рамках строительства?
- Фундамент дома смонтирован из винтовых свай;
 - Каркас дома построен из пиломатериала камерной сушки;
 - Кровля дома смонтирована из металлочерепицы (цвет серый графит RAL 7024);
 - Наружная отделка стен выполнена имитацией бруса с заводской окраской;
 - Установлены двухкамерные ПВХ стеклопакеты;
 - Внутренняя отделка также выполнена имитацией бруса, полы — из влагостойкой ДСП толщиной 16 мм;
 - Выполнено утепление пола/стен и потолка базальтовыми плитами толщиной 200 мм;
 - Смонтирована пластиковая водосточная система;
 - Установлены трубчатые снегозадержатели в цвет кровли;