Одноэтажный дом по индивидуальному проекту: 3 спальни, кухня-гостиная, санузел, сауна и котельная.
Зачастую выбрать что-то из типовых проектов у заказчиков не получается и они приходят к нам с собственным планом. Сегодня как раз история о такой стройке. СК "Свой теплый дом": воплощаем мечты :)
Сегодня сделаем обзор на построенный силами нашей бригады дом в коттеджном поселке "Малиновые вечера" в Ленинградской области.

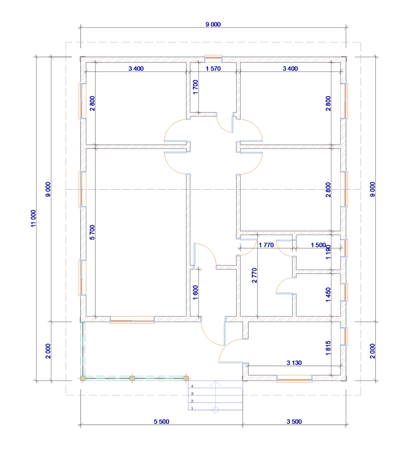
Одноэтажный дом с габаритами 9 х 11 метров и общей площадью почти 100 кв.м. был построен по индивидуальному проекту заказчика. И вот, что он собой представляет:

В доме оборудована котельная с отдельным входом с террасы (которая, кстати, и служит входной группой). Проходя в дом, мы попадаем в небольшой тамбур, а далее — в холл. Отсюда можно пройти в санузел (где оборудована также сауна), кухню-гостиную площадью 19 кв.м., 3 спальни по 9,5 кв.м. и дополнительную гардеробную-кладовую для хранения.
Что было сделано?
- Каркас дома выполнен из сухих пиломатериалов; утепление пола и потолка толщиной 200 мм, стен — 150 мм;
- Фасадная отделка — имитация бруса с заводской окраской, под имитацию смонтирован ветрозащитные плиты Белтермо, толщиной 20 мм;

- Внутренняя отделка выполнена вагонкой, для отделки парной использована осиновая вагонка, полы — влагостойкая ДСП 22 мм;
- Кровля — металлочерепица (цвет серый, RAL 7024), смонтированы снегозадержатели в цвет кровли;
- Установлены двухкамерные ПВХ стеклопакеты, деревянные межкомнатные двери и металлическая входная дверь;
- Смонтирована система вентиляции и пластиковая водосточная система.