Небольшой загородный дом: проект К-8
Бригада строительной компании "Свой теплый дом" закончила строительство очередного дома! На это раз мы построили одноэтажный каркасный дом по проекту К-8 (с небольшими изменениями) в Волосовском районе Ленинградской области, недалеко от Кюрлевских карьеров (местные Мальдивы или Сейшелы).
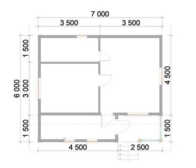
Для строительства заказчик выбрал проект одноэтажного дома размером 6х7 м. Общая площадь дома - 42 кв.м., но даже на этой площади удалось уместить все необходимое для комфортной загородной жизни небольшой семьи.

Планировка
По исходному проекту у дома есть просторная 11-метровая терраса. Но по желанию Заказчика, вместо части террасы появился тамбур с кладовой/гардеробной комнатой.
.jpg)
Планировка построенного дома, оригинальная планировка по проекту К-8 в карусели
Входная группа - компактная 3,5-метровая терраса, откуда мы попадаем в тамбур (6,75 кв.м.). В торцевой части тамбура предусмотрено место для организации закрытой системы хранения.
Из тамбура мы попадаем сразу в основное помещение дома - кухню-гостиную, общей площадью 15,75 кв.м. Также в доме есть изолированная спальня площадью 10,5 кв.м. и санузел с отдельным окном площадью 5 кв.м.
Что было сделано?
- Смонтирован каркас из сухой доски, утепление - 150 мм;
- Внешняя отделка фасада - сайдинг Docke, выбран оттенок "карамель";
.jpg)
- Внутренняя отделка дома выполнена вагонкой, полы - влагостойкая ДСП толщиной 22 мм;
.jpg)
- Кровля из металлочерепицы, оттенок 3005;
- Установлены двухкамерные ПВХ стеклопакеты, металлическая входная дверь и деревянные филенчатые межкомнатные двери.
- Фундамент был выполнен Заказчиком самостоятельно: он выбрал столбчатый из бетонных блоков.