Каркасный дом по инд.проекту: 6х9 м, 1 этаж, 2 спальни и кухня-гостиная
Сегодня делимся результатами строительства дома в пос. Мшинское. Заказчики долго выбирали проект для строительства в нашем каталоге, но решили строиться по собственному индивидуальному проекту, который был рассчитан и отрисован нашим проектировщиком.

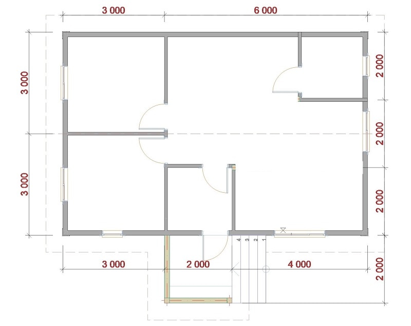
Габариты дома — 6 на 9 метров, а крыльца — 2 на 2 метра. Давайте посмотрим, что есть в этом компактном, но интересном домике.

Входная группа — 4-метровое крыльцо, откуда мы попадаем в тамбур с предусмотренной нишей для установки системы хранения. Проходим далее и оказываемся в кухне гостиной. За счет нетиповой планировки помещение отлично зонируется. Сразу напротив входа запланировано размещение кухни и столовой, а справа в зоне с двумя большими окнами, располагается зона гостиной. В угловой зоне также разместился 4-метровый санузел. А в левой части дома расположились две изолированные 9-метровые спальни.
Что было сделано в рамках строительства?
- Установлен фундамент — железобетонные сваи;
- Каркас собран из сухих пиломатериалов, а утепление составляет 150 мм;
- Фасад дополнительно утеплен 20-мм плитами Белтермо;
- Внешняя отделка — имитация бруса без окраски;
- Внутренняя отделка выполнена вагонкой, а полы влагостойкой ДСП 16 мм;

- Кровля — металлочерепица (цвет коричневый 8017);
- Установлены двухкамерные ПВХ стеклопакеты, металлическая входная дверь и деревянные межкомнатные двери.